navigation


HEARTH

Exterior Nighttime View

Fire Station 24

Fourth Year Fall | Pittsburgh, PA

Project Team: Bleona Velic, Christian Duckworth

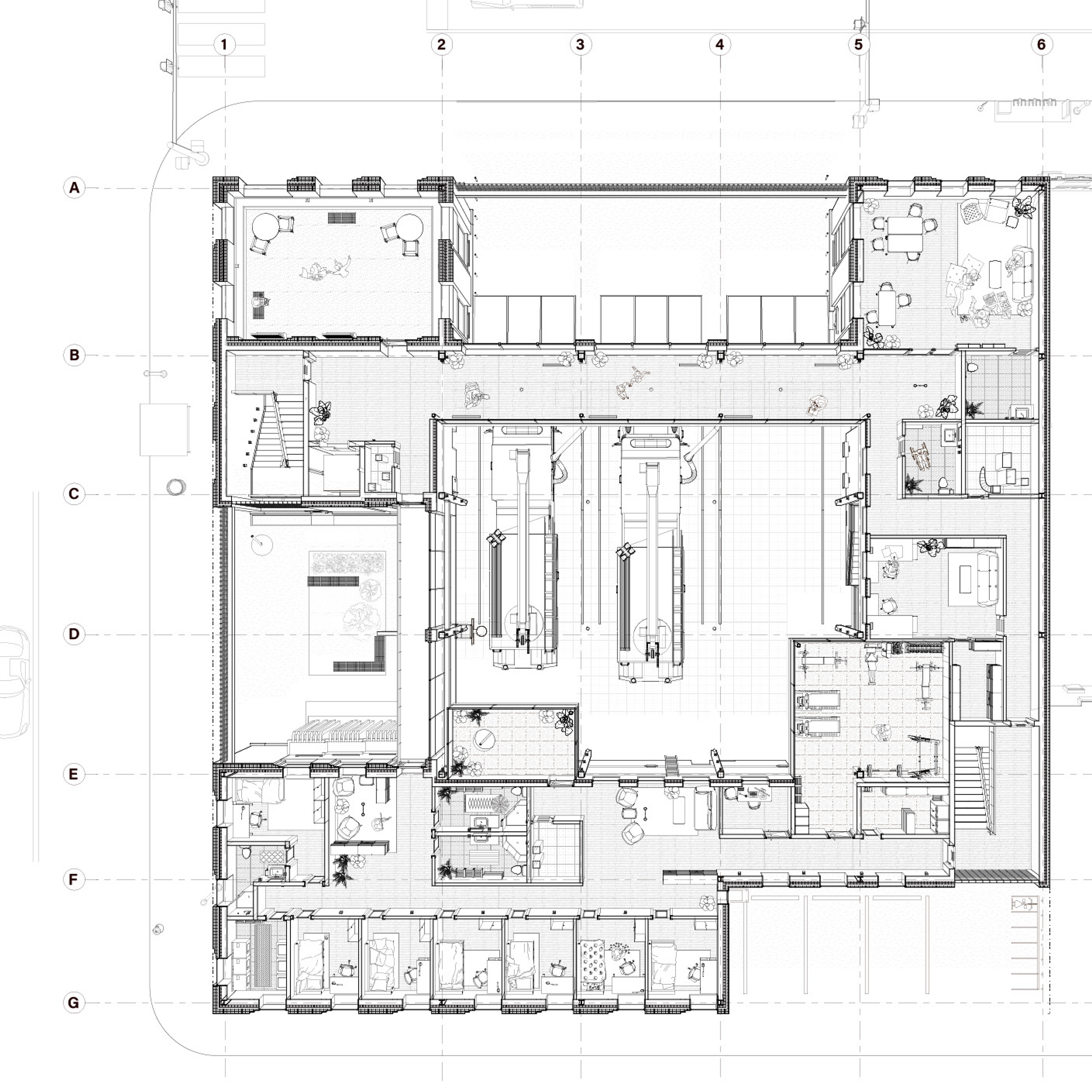
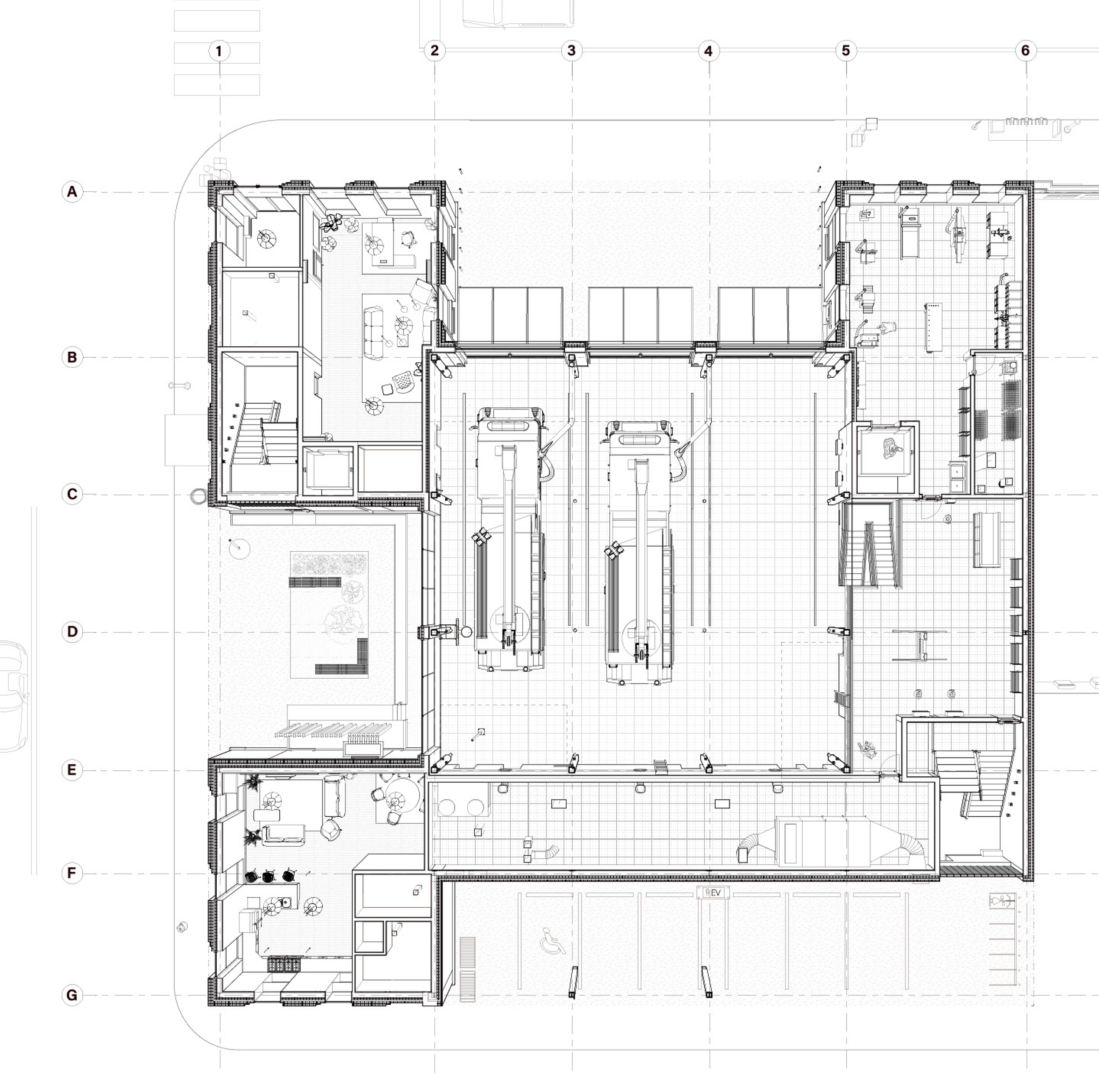
Through reimagining the new Fire Station 24 in the South Side as a community centre, this proposal transforms the apparatus bay into a “hearth” that connects the community to the firefighters. The building massing respects the existing site by breaking down the building into smaller nodes, framed by brick pilasters, while the perforated terracotta facade screens the interior apparatus bay. Upon entering, visitors see the apparatus bay, which features an airy, vaulted roof that acts as a luminous beacon at night and filters diffused daylight through metal perforations during the day. Addressing the neighbourhood’s lack of third spaces, the design invites civic engagement through a public green roof and an experiential walkway that cuts through the apparatus bay, offering visual interactions to the daily life of the fire service. Integrated active environmental strategies include an HVAC system hidden within the floors via a castellated structure and dropped ceilings. The station reveals itself upon approach like a geode, transitioning from a respectful street-facing exterior to the dynamic, airy “hearth” that celebrates the vital intersection of civic duty and community life.

1/6: Upon Approach

2/6: Lobby

3/6: Experiential Staircase

4/6: Walkway Facing East

5/6: Walkway Facing West

6/6: Community Room

First Floor Plan

Mezzanine Floor Plan

Second Floor Plan

North-South Section

East-West Section

Building Elevations

View from Courtyard

HVAC Isometric Diagram

MEP Floor Plans

Enlarged Section and Elevation: Courtyard

Enlarged Section and Elevation: Green Roof

Enlarged Details

Structural Axon

Structural Axon Chunk: Roof

Structural Axon Chunk: Terracotta Screen Facade

Interior View: Apparatus Bay

Interior View: Gym

Interior View: Kitchen

Interior View: Day Lounge

Chunk Model: 3/4” : 1’

Roof Study Model: 1/8” : 1’

Castellated Structure / MEP Study Model: 1/8” : 1’

Initial Development Structure Study Model: 1/8” : 1’

Next
Next

Herberger Theatre Center Pavilion